Trilocale in vendita

Roma, Via Cesare Massini - Colli Dell'Aniene
€ 270.000
3 locali 3 locali
95 Mq 95 Mq
2 bagni 2 bagni

Trilocale in vendita

Roma, Via Cesare Massini - Colli Dell'Aniene

Descrizione annuncio

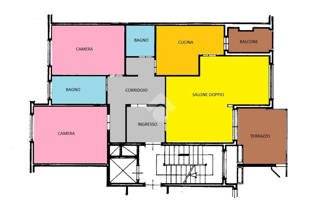
In Via Cesare Massini, proponiamo in vendita ampio trilocale di 96 mq, posto al primo piano di una palazzina in tinta in buono stato manutentivo, servita da ascensore e dotata di posto auto di pertinenza, elemento di grande valore e comodità.

L’appartamento si caratterizza per la distribuzione razionale degli ambienti, la generosa metratura e la presenza di spazi esterni vivibili, offrendo un eccellente potenziale di personalizzazione.

L’ingresso introduce in un comodo disimpegno che separa in maniera funzionale la zona giorno dalla zona notte.
Il soggiorno, ampio e luminoso, rappresenta il cuore della casa: uno spazio accogliente e facilmente arredabile, con accesso diretto al terrazzino, ideale per momenti di relax, colazioni all’aperto o per creare una piacevole zona verde.

La cucina abitabile, di ottima metratura, è dotata di doppio ingresso, sia dal corridoio sia direttamente dal soggiorno, caratteristica che rende gli ambienti comunicanti ma al tempo stesso facilmente rimodulabili in fase di ristrutturazione. Dalla cucina si accede al secondo balcone, che garantisce ulteriore luminosità e aerazione naturale.

La zona notte è composta da due camere da letto matrimoniali, entrambe spaziose e ben proporzionate, adatte ad accogliere armadiature importanti e arredi completi.
Completano la proprietà due bagni, di cui uno finestrato, elemento sempre molto apprezzato, e un secondo bagno cieco, funzionale come servizio o lavanderia.

L’immobile si presenta completamente da ristrutturare, offrendo così la possibilità di ripensare gli spazi secondo le proprie esigenze abitative e il proprio gusto estetico. Grazie alla pianta regolare e alla metratura, è facilmente trasformabile in quadrilocale, con la possibilità di realizzare una terza camera, uno studio oppure un soggiorno con cucina a vista, aumentando significativamente il valore dell’investimento.

Soluzione ideale per famiglie, per chi desidera ambienti ampi e personalizzabili.

Mostra tutto

Nelle vicinanze

Trasporto pubblico Trasporto pubblico
Santa Maria del Soccorso
Santa Maria del Soccorso
1,2 Km
Ponte Mammolo
Ponte Mammolo
1,5 Km
Palmiro Togliatti
Palmiro Togliatti
610 m
Serenissima
Serenissima
1,5 Km
Prenestina/Larici
Prenestina/Larici
1,5 Km
Ricariche auto elettriche Ricariche auto elettriche
Esselunga Prenestino
1,2 Km
YouGo Prenestina | EnelX
2,4 Km
Scuole Scuole
Istituto Tecnico Commerciale "Gaetano Salvemini"
400 m
Istituto Paritario "Alfred Nobel"
430 m
Istituto Comprensivo Via Santi
630 m
Istituto di Istruzione Superiore "Croce-Aleramo"
780 m
Istituto Minerva
850 m
Farmacia Farmacia
Farmacia
190 m
Farmacia Fattori
490 m
Farmacia Colli Aniene
690 m
Farmacia Bardanzellu
860 m
Parafarmacia Conad
930 m
Ospedali Ospedali
Rome American Hospital
2,8 Km
Ospedale Sandro Pertini
2,9 Km
Ospedali
3,0 Km
Casa di Cura Nuova ITOR
3,0 Km
Supermercati Supermercati
Coop
380 m
IN'S Mercato
530 m
Carrefour
560 m
Tuo dì market
730 m
Sigma
940 m
Negozi Negozi
La Farcita... Pane Pizza e Rinfreschi
330 m
La Magia Dei Sapori
530 m
Mister Risparmio
1,1 Km
Panificio Meraviglioso
1,7 Km
Carrefour Express
1,7 Km
Bar Bar
L'Acchiappasogni Cocktail Bar Restaurant
1,2 Km
Alexander Bar
1,8 Km
Happy Hours
2,0 Km
Bar
2,1 Km
Emma Bar
2,1 Km
Ristoranti Ristoranti
Ristorante Maia
190 m
Antica Pizza
230 m
Duo Wei Zhuang
330 m
La Pampa
340 m
Pinsa Chef
460 m
Mostra tutto

Caratteristiche

Rif.:
61178113
Piano:
1 di 8 con ascensore (Piano basso)
Posti auto:
1
Balconi:
1
Terrazzi:
1
Camere da letto:
2
Mostra tutto
Prezzo Prezzo
€ 270.000
Rata mutuo Rata mutuo
€ 1.280 / mese
Spese annue Spese annue
€ 1.560
Proponi il tuo prezzoProponi il tuo prezzo

Classe Energetica

G
G
G
G
G
G
G
G
G
EP globale non rinnovabile:
175.00 kW h/m² anno
EP globale rinnovabile:
175.00 kW h/m² anno
Anno di costruzione:
1974
Riscaldamento:
Centralizzato
Tipo impianto:
A radiatori
Tipo alimentazione:
Metano

Ti interessa visionare l'immobile?

Fissa un appuntamento  Fissa un appuntamento

Richiedi informazioni

Clicca su Leggi per aprire l'informativa
* Questi campi sono obbligatori

Calcola il tuo mutuo

Semplice e senza impegno
Anticipo

( % )
Mutuo

( % )

pochi semplici passi

inserisci i tuoi dati
Questionario completato
Grazie per aver richiesto un appuntamento senza impegno con un nostro Consulente del Credito e Assicurativo.

Hai inserito correttamente tutti i dati necessari e a breve riceverai una e-mail con un link da convalidare per inviare i tuoi dati.
Affiliato
Studio Collatino Verderocca Srl
Viale Sacco e Vanzetti, 181 00155 Roma (RM)

Il nostro staff


  • Martina Conti
    Collaboratrice

  • Tetiana Forfylo
    Coordinatrice

  • Denise Napoleoni
    Collaboratrice

  • Virginio Papillo
    Affiliato
Viale Sacco e Vanzetti, 181 00155 Roma (RM)
Zona: Colli Aniene - Verderocca
Mostra su mappa
Orari: dal lunedì al venerdì 09.00-13.30 15.00-19.30. Sabato 09.00-13.30 15.00-18.00
Affiliato
Studio Collatino Verderocca Srl
Viale Sacco e Vanzetti, 181 00155 Roma (RM)

2026 Tecnocasa Franchising S.p.A. - P. IVA 08365160152 - Via Monte Bianco 60/A 20089 Rozzano (MI). Ogni agenzia ha un proprio titolare ed è autonoma. Privacy policy | Policy utilizzo | Cookie policy