Trilocale in vendita

Roma, Via Filippo Cremonesi - Collatino
€ 360.000
3 locali 3 locali
86 Mq 86 Mq
2 bagni 2 bagni

Trilocale in vendita

Roma, Via Filippo Cremonesi - Collatino

Descrizione annuncio

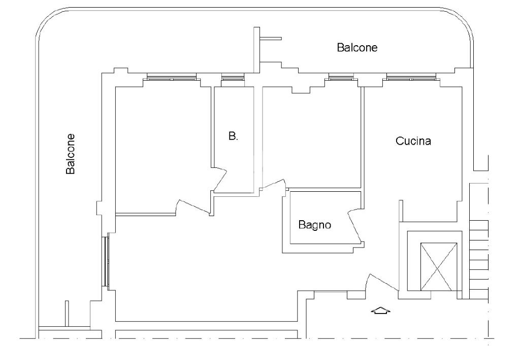
In Via Filippo cremonesi 6, in una palazzina di recente costruzione, proponiamo in vendita elegante trilocale con doppi servizi e balcone perimetrale abitabile, con splendida vista sul Parco Prampolini.

L’appartamento si compone di luminoso soggiorno, un'ampia cucina, due camere da letto, due bagni (uno finestrato) e balcone vivibile accessibile da tutti gli ambienti principali, ideale per momenti di relax all’aperto.

Dotato di riscaldamento autonomo, infissi di ultima generazione, porta blindata e aria condizionata, l’immobile offre comfort e risparmio energetico.

Completano la proprietà un comodo box auto e la possibilità di parcheggio nella zona circostante.

Contesto tranquillo e signorile, vicino a servizi, scuole, aree verdi e mezzi pubblici.
Perfetto per chi cerca una soluzione moderna, luminosa e pronta da abitare.

Mostra tutto

Nelle vicinanze

Trasporto pubblico Trasporto pubblico
Gardenie
Gardenie
1,6 Km
Teano
Teano
1,9 Km
Palmiro Togliatti
Palmiro Togliatti
590 m
Serenissima
Serenissima
990 m
Prenestina/Valente
Prenestina/Valente
510 m
Ricariche auto elettriche Ricariche auto elettriche
Esselunga Prenestino
390 m
YouGo Prenestina | EnelX
2,0 Km
Eneldrive Autorimessa Primula
2,1 Km
Scuole Scuole
ITIS Giorgi
200 m
Scuole
670 m
Scuola Andrea Doria
720 m
Istituto comprensivo statale "Largo Cocconi"
920 m
Istituto Tecnico Commerciale "Gaetano Salvemini"
1,4 Km
Farmacia Farmacia
Parafarmacia Conad
160 m
Farmacia Collatina
350 m
Farmacia Dottoressa Piccoli Teresa
890 m
Farmacia Carnovale
920 m
Farmacia della Serenissima
1,0 Km
Ospedali Ospedali
Ospedali
1,9 Km
Rome American Hospital
2,7 Km
Pronto Soccorso Ospedale "Madre G. Vannini"
3,0 Km
Istituto delle Figlie di San Camillo - Ospedale M. G. Vannini
3,0 Km
Supermercati Supermercati
Conad
170 m
Esselunga del Prenestino
320 m
Carrefour
360 m
Eurospin
380 m
CRAI - Magrelli e Pierantozzi
820 m
Negozi Negozi
Mister Risparmio
290 m
Carrefour Express
780 m
Panificio Meraviglioso
1,0 Km
Panificio Costantini
1,2 Km
Shop & Go
1,3 Km
Bar Bar
Alexander Bar
860 m
Bar
1,1 Km
Dopotutto
1,1 Km
The blue bar
1,3 Km
Bar la Fenice
1,4 Km
Ristoranti Ristoranti
Ristorante Nduja
820 m
Pizzamania
850 m
Il quagliaro
880 m
Io Pizzetta Caffetteria
920 m
Celebrità
1,0 Km
Mostra tutto

Caratteristiche

Rif.:
61139003
Piano:
2 di 4 con ascensore (Piano medio)
Box:
1
Balconi:
1
Terrazzi:
1
Camere da letto:
2
Mostra tutto
Prezzo Prezzo
€ 360.000
Rata mutuo Rata mutuo
€ 1.696 / mese
Spese annue Spese annue
€ 1.450
Proponi il tuo prezzoProponi il tuo prezzo

Classe Energetica

B
B
B
B
B
B
B
B
B
EP globale non rinnovabile:
16.70 kW h/m² anno
EP globale rinnovabile:
16.70 kW h/m² anno
EP invernale del fabbricato:
EP estiva del fabbricato:
Anno di costruzione:
2012
Riscaldamento:
Autonomo
Tipo impianto:
A radiatori
Tipo alimentazione:
Metano

Ti interessa visionare l'immobile?

Fissa un appuntamento  Fissa un appuntamento

Richiedi informazioni

Clicca su Leggi per aprire l'informativa
* Questi campi sono obbligatori

Calcola il tuo mutuo

Semplice e senza impegno
Anticipo

( % )
Mutuo

( % )

pochi semplici passi

inserisci i tuoi dati
Questionario completato
Grazie per aver richiesto un appuntamento senza impegno con un nostro Consulente del Credito e Assicurativo.

Hai inserito correttamente tutti i dati necessari e a breve riceverai una e-mail con un link da convalidare per inviare i tuoi dati.
Affiliato
Studio Collatino Verderocca Srl
Viale Sacco e Vanzetti, 181 00155 Roma (RM)

Il nostro staff


  • Tetiana Forfylo
    Coordinatrice

  • Denise Napoleoni
    Collaboratrice

  • Virginio Papillo
    Affiliato
Viale Sacco e Vanzetti, 181 00155 Roma (RM)
Zona: Colli Aniene - Verderocca
Mostra su mappa
Orari: dal lunedì al venerdì 09.00-13.30 15.00-19.30. Sabato 09.00-13.30 15.00-18.00
Affiliato
Studio Collatino Verderocca Srl
Viale Sacco e Vanzetti, 181 00155 Roma (RM)

2026 Tecnocasa Franchising S.p.A. - P. IVA 08365160152 - Via Monte Bianco 60/A 20089 Rozzano (MI). Ogni agenzia ha un proprio titolare ed è autonoma. Privacy policy | Policy utilizzo | Cookie policy